Маленький одноэтажный мансардный дом для уик-энда имеет размеры в плане всего лишь 7,3х5,4 м. Благодаря значительному уклону простой двухскатной кровли (55°) удалось создать комфортабельную двухсветную мансарду. Окна южного фасада дома имеют увеличенную площадь, а площадь окон остальных фасадов несколько уменьшена.
Рис. 1. Общий вид.
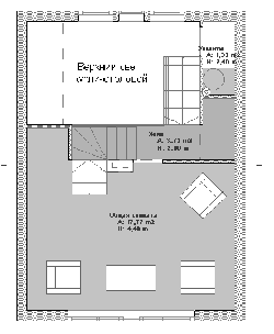
На 1-ом этаже расположены:
- прихожая 2,02 м2;
- 2-светная кухня-столовая 12,69 м2 с лестницей на мансарду;
- туалет 1,33 м2 с компостером карусельного типа;
- спальня 1 8,37 м2;
- спальня 2 7,93 м2.
- лестничный холл 3,67 м2;
- 2-светная общая комната 17,77 м2 с лестницей на 2-ой уровень;
- отсек с баками системы водоснабжения 1,32 м2.





Комментарии