Этот двухэтажный пассивный солнечный дом площадью 144 м², спроектированный и построенный фирмой Colorado Sunworks, внешне выглядит как обычный компактный в плане дом.

Внешний вид
Отличает этот дом от окружающих домов лишь полное остекление южного фасада.
Планировка
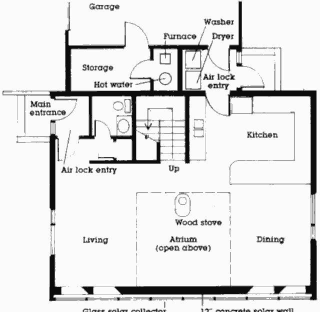
На первом этаже этого уютного компактного дома расположены: двухсветный атриум с дровяной печью, гостиная, столовая, кухня, санузел, постирочная, кладовая, помещение с инженерным оборудованием. К северному фасаду дома пристроен гараж, выполняющий функцию теплового буфера.

План первого этажа
На втором этаже дома находятся: 3 спальни с гардеробными, 2 ванных комнаты.
Естественное освещение
Естественное освещение всех помещений обеспечивает двухсветный атриум.
Отопление
Южный фасад дома полностью остеклён. Бетонная монолитная 300 мм стена, расположенная непосредственно за остеклением — стена Тромба (Indirect Gain).
Тепло, накопленное в стене Тромба в течение солнечного дня, отдаётся в ночное время помещениям 1-го и 2-го этажей.
На закате, 5-слойные теплоизоляционные шторы, расположенные между стеной Тромба и витражом, автоматически опускаются, значительно снижая теплопотери через остекление в холодные зимние ночи.
Итоги
Такая система пассивного отопления покрывает 85% отопительной нагрузки дома.
Комментарии