Одноэтажный заглублённый землебитный солнечный дом площадью 145,7 м², спроектированный архитектором д-ром Оуэном Гейгером (Owen Geiger), имеет встроенную гелиотеплицу.

Южный фасад
Конструкция
Для возведения стен проектом предусмотрено применение землебитной строительной технологии Earthbags (мешки с землёй).
Дом практически не нуждается в наружной отделке, так как стены обвалованы землей, а крыша покрыта дёрном (Living Roof).
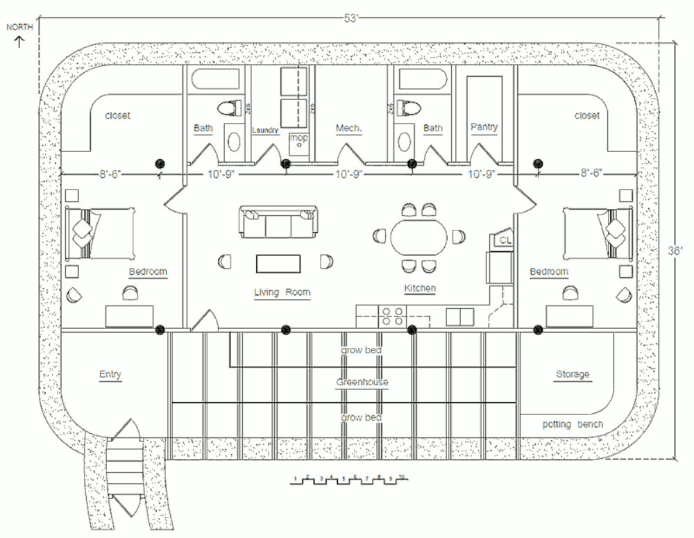
Планировка
В жилой части дома на площади 104,7 м² расположены: большая общая комната с кухней-столовой; 2 спальни с гардеробными; 2 санузла; кладовые; техническое помещение.

План
Отопление
Солнечная теплица площадью 41 м², встроенная в дом со стороны южного фасада, является системой пассивного солнечного отопления (Isolated Gain).

Разрез
Тепло, поступающее из теплицы в помещения солнечного дома, распределяется естественной конвекцией. Оно аккумулируется массивной бетонной плитой пола и землебитных стен, огромная термическая масса которых стабилизирует температуру в помещениях. В ночное время нагретые термические массы свободно излучают тепло, поддерживая в помещениях дома комфортную температуру.
Комментарии